Двустаен в ж.к. Христо Смирненски

  • sales
  • 2024 г.
  • Акт 16
  • new building

€ 110000

€ 1571.43 / m2

BGN 215141.3

BGN 3073.45 / m2

70 m2

Phone:
0878504483

Property Description

Титан Пропъртис представя на Вашето внимание двустаен апартамент в ж.к. Христо Смирненски. В близост са разположени търговски обекти, спирки на градски транспорт, детски градини, училище, Гребната база, както и зони за отдих.

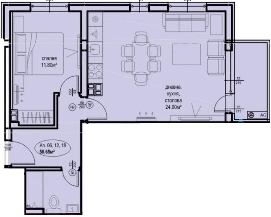
Апартаментът е ситуиран на 3-ти жилищен етаж и разполага със застроена площ от 59 кв.м., разгърната по следния практичен начин: антре, дневна с трапезария и кухненски бокс, спалня, баня с тоалетна, тераса.

Изложение: запад/север/юг. Отопление: електричество. Сградата е с издаден Акт 16 от април 2024г. Жилището се продава на шпакловка и замазка, за да може Вашето въображение да го превърне в мечтаният за Вас нов ДОМ!

За оглед на това и други атрактивни предложения, не се колебайте да ни потърсите на посочения телефон или да ни изпратите данните си чрез формата за запитване на сайта. Реф. номер: 56913.

Details

Type deal: sales

Kind: one bedroom

Floor: 3

Floors: 5

Building year: 2024 г.

Completion: Акт 16

Construction: new building

Area: 70 m2

Exposure: West / North / South

Виж апартаменти в сградата
Теодор Колев

Опит: 4+ години опит в наемните отношения и покупко-продажби на недвижими имоти.

Експертиза: Покупко-продажби и инвестиции в жилищни и бизнес имоти.

Фокус: Развитие на екип "Продажби" на територията на гр. Пловдив.

Теодор Колев мениджър продажби офис Център, Пловдив

Phone: 0878504483


Contact us

Want to be successful in real estate?

Become part of the company with the best career development system!

Apply now!