Офис, под наем, кв. Трошево

  • rent
  • 2014 г.
  • Акт 16
  • brick

€ 950 € 920

€ 8.96 € 8.68 / m2

BGN 1858.04 BGN 1799.36

BGN 17.53 BGN 16.98 / m2

106 m2

Phone:
0888550803

Gallery

Property Description

Агенция за недвижими имоти Титан Пропъртис с радост предлага на Вашето внимание търговско помещение под наем в кв. Трошево, Варна.

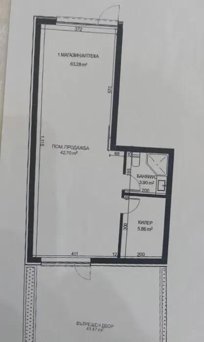
Разполага с площ от 106 кв.м и е ситуиран на партерен етаж, като разпределението включва еднопространствено помещение тип "open space", санитарен възел, килер

Подходящо е за аптека, магазин, фризьорски салон или офис.

"С нас, вашето търсене на имот завършва с усмивка. "

За оглед на това и други атрактивни предложения, не се колебайте да ни потърсите на посочения телефон или да ни изпратите данните си чрез формата за запитване на сайта.

Реф. номер: 2213738

Details

Type deal: rent

Kind: store

Floor: партер

Floors: 4

Building year: 2014 г.

Completion: Акт 16

Construction: brick

Area: 106 m2

Exposure: South

Виж апартаменти в сградата
Веселин Радилов

Опит: 4+ години опит в управлението на екипи

Експертиза: наемни отношения и сделки с жилищни и бизнес имоти

Фокус: развитие на отдели „Наеми“ и „Продажби“ на територията на гр. Варна

Веселин Радилов директор офис Варна

Phone: 0888550803


Contact us

Want to be successful in real estate?

Become part of the company with the best career development system!

Apply now!